Descriptif
Villa d'architecte jumelée par le garage de 4,5 pièces avec un terrain exclusif de 264 m2 en bordure de zone agricole à Porsel.
LES ATOUTS EN UN COUP D'OEIL
- Villa d'architecte
- Construction traditionnelle
- Intérieurs sur mesure
- Cadre champêtre et nature
- Vue dégagée
SITUATION
Le charmant village de Porsel du district de la Veveyse est situé dans le canton de Fribourg avec une proximité immédiate du Canton de Vaud :
- 5 minutes d'Oron-la-Ville avec toutes ses commodités
- 25 minutes de la ville de Lausanne et Vevey et 35 minutes de Fribourg
LA VILLA
Le modèle présenté (villa A) offre de grands avantages, mais vous pourrez la composer intégralement si vous le désirez sur devis.
Nous nous occupons de tout et vous accompagnons du début à la remise des clés.
La surface présentée mesure 197m2 bruts et 111m2 nets pour 4,5 pièces (modulable).
La villa est ici prévue comme semi excavée, mais ceci peut être modifié également.
LE TERRAIN
La parcelle totale mesure 264 m2. Un terrain supplémentaire (agricole) de 902 m2 est également en jouissance exclusive. Cela fait un terrain privatif total de 1166 m2.
Elle se situe dans un rayon proche de toutes les commodités. À 4 minutes en voiture de la gare CFF de Vauderens et à 350 mètres de l'école primaire dans le village.
Étant localisée dans un quartier très verdoyant et en bordure de champs, vous pourrez jouir d'une situation sereine pour votre famille.
L'INTERIEUR :
La répartition des pièces se détaille comme suit :
REZ :
- Hall d'entrée avec vestiaire - 7,86 m2
- Cuisine équipée ouverte /salle à manger - 18,18 m2
- Grand salon avec accès terrasse - 21,44 m2
- WC visteurs - 2,37 m2
ETAGE :
- 1 vaste chambre parentale avec WC/douche attenante - 19,57 m2
- 1 grande chambre à coucher - 13,50 m2
- 1 grande chambre à coucher - 14,00 m2
- 1 salle de bain (WC, baignoire) - 6,98 m2
- Hall de distribution - 6,86 m2
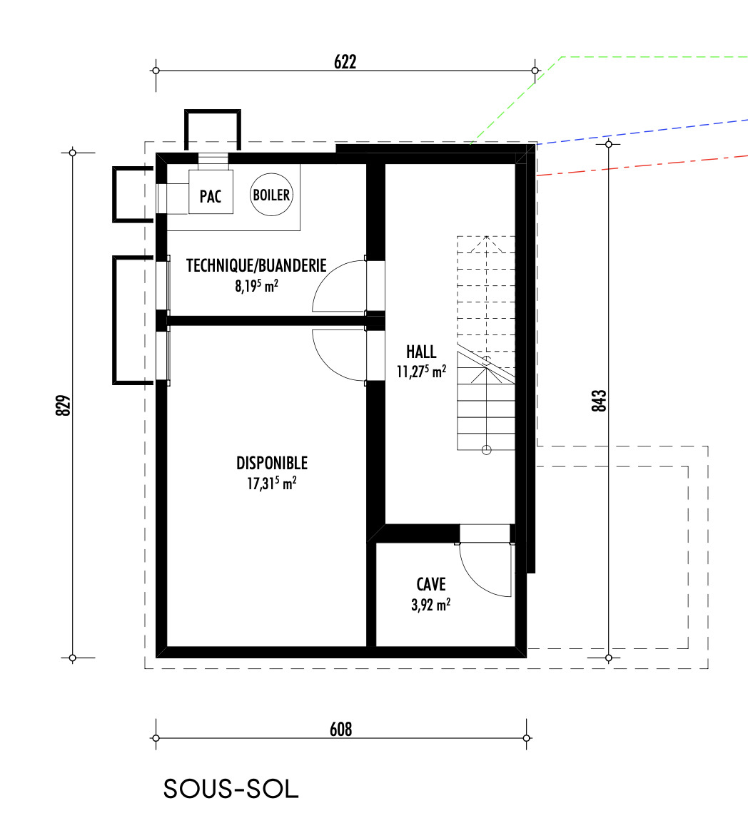
SOUS-SOL
- Cave - 3,92 m2
- Disponible - 17,31 m2
- Local technique / Buanderie - 8,19 m2
- Hall de distribution avec rangement sous escaliers - 11,27 m2
EXTERIEURS :
- Jardin privatif
- Terrasse
- 1 place de parc extérieure comprise dans le prix de la villa avec possibilité de construire 1 couvert ou 1 garage (prix sur devis)
- 1 place couverte inclue dans le prix
Vous êtes déjà propriétaire et souhaitez coordonner l'achat de cette maison avec la vente de votre domicile actuel ?
N'hésitez pas à nous demander une estimation offerte. Nous vous rencontrons volontiers pour vous orienter dans les bonnes démarches.
www.synergimmo.ch
Commodités
Environnement
- Village
- Quartier de villas
- Verdoyant
Extérieur
- Jardin
- Silencieux/tranquille
- Verdure
- Parking
Intérieur
- Lumineux
- Traversant
Sol
- A choix
Etat
- Neuf
Ensoleillement
- Optimal
Vue
- Belle vue
- Dégagée
- Champêtre
- Jardin
Efficacité énergétique (CECB)
L'étiquette énergétique résulte de l'évaluation de la performance énergétique globale (chauffage, eau chaude sanitaire, éclairage et autres postes de consommation) et de la performance de l’enveloppe d'un bâtiment.










